
物件詳細
| 物件番号 | HC455 | 
|---|---|
| 住所 | 茨城県神栖市須田字上末吉2340-87 | 
| 種別 | 建売・中古住宅 | 
| 総価格 | ¥27,000,000 | 
| 単価 | 3.3m2(1坪)- | 
| 地積 | 353.27m2(106.86坪) | 
| 地目 | 宅地 | 
| 用途 | 調整区域(区域指定) | 
| 現状 | 建物付き | 
| 建ぺい率 | 60% | 
| 容積率 | 200% | 
| 道路 | 西側4m | 
| 地形 | 間口約15.9m×奥行約22.2m | 
| 学区 | 須田小学校、波崎第三中学校 | 
| 設備 | ●公営水道 ●浄化槽 ●オール電化 | 
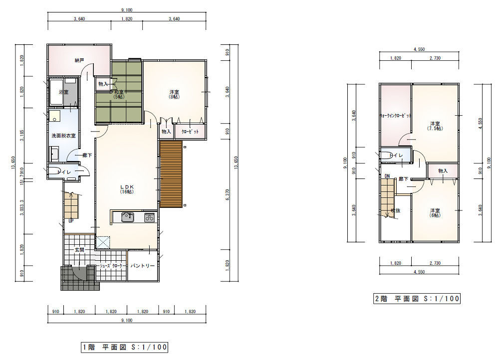
| 建物 | 1  F:89.85m2(27.17坪) 2 F:38.09m2(11.52坪) 延面積:127.94m2(38.53坪) 構 造:木造 スレート葺 2階建 間 取:居宅 現 況:完成済み 建 築:昭和54年5月築 引 渡:相談 | 
| 国土法 | 不要 | 
| 農地法 | 不要 | 
| 備考 | 新築そっくりさん(令和7年9月フルリノベーション施工済み) 取引態様:仲介 | 
※ 掲載されている写真やイラストは、それぞれ縮小率が異なります。
            ※物件の写真やイラストなどは実際と多少異なる場合があります。
            ※消費税および地方消費税の対象となる場合は税込価格が表示されています。
            ※本ページの掲載内容は予告なく変更される場合があります。あらかじめご了承ください。













